Nubes Altas

Detalles

Conjunto de 4 casas en privada con Ubicación privilegiada a tan solo 10 minutos del centro de Avándaro, disfrutará de la cercanía a restaurantes, boutiques y la vida social de la zona.
Para los amantes del golf, el prestigioso Club de Golf Avándaro se encuentra a escasos 8 minutos.
La comodidad de tener el Fresko Avándaro a 12 minutos asegura el fácil acceso a sus compras diarias.

Estas casas de diseño arquitectónico excepcional, se distribuyen de la siguiente manera:

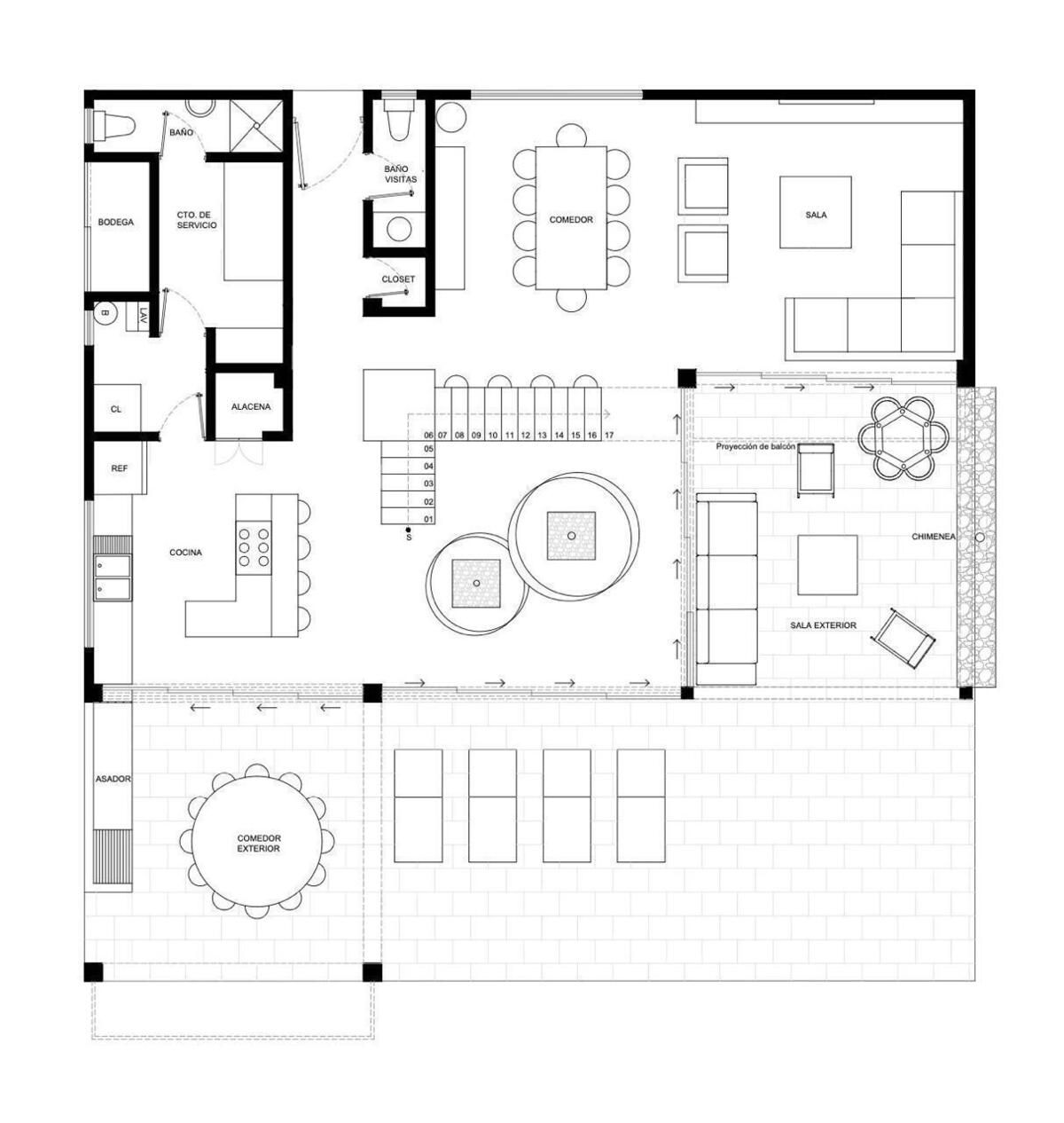
Planta Baja (225 m² habitables):
Un elegante medio baño para visitas.
Cuarto de servicio con baño completo, para mayor comodidad.

Bodega y cuarto de lavado, espacios funcionales y prácticos.
Cocina de concepto abierto, ideal para los amantes de la gastronomía.

Comedor y sala interiores, diseñados para el confort y la convivencia.

Espacios exteriores que invitan al relax: comedor exterior, sala exterior con chimenea y una barra para bar, perfecta para el entretenimiento.

Biodigestor, con lo cual se ayuda al medio ambiente.

3 cajones de estacionamiento.

Patio de doble altura, que aporta luminosidad y amplitud.

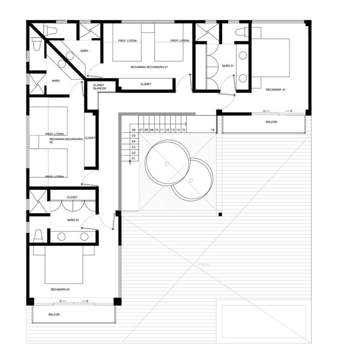
Planta Alta (135 m² habitables):
Dos recámaras principales con vestidor, baño completo y balcón privado, un refugio de tranquilidad.

Dos recámaras secundarias, cada una con su baño completo.
Closet de blancos.

Patio de doble altura.

El diseño de estas residencias maximiza la integración con el entorno natural, ofreciendo amplios espacios y una sensación de libertad.

Los acabados de alta calidad y la atención al detalle se reflejan en cada rincón, creando un ambiente de lujo y confort.

La cercanía a puntos clave de Avándaro, combina la tranquilidad de Cerro Gordo, con la facilidad de acceso a todos los servicios.

Estas residencias representan una oportunidad única para quienes buscan un hogar exclusivo en una de las zonas más deseadas de Avándaro.

Jacuzzi o Alberca con costo adicional.

Casas disponibles:
Casa 1 de 721 m2 de terreno y 360 m2 de construcción precio: $9,590,000.00
Casa 4 de 900 m2 de terreno y 360 m2 de construcción precio $9,940,000.00
Casa 3 de 721 m2 de terreno y 360 m2 de construcción precio $11,645,000.00

Contactar al vendedor

Lilia Schnaas

5544 ...

Enviar mensaje



Al dar click en "Enviar consulta" aceptas los términos y condiciones y has leído el aviso de privacidad.

También puede interesarte